Image

Un nuevo modo
de vivir Pilará

Quiero recibir más info

El proyecto

Diseño, flexibilidad y visión de futuro. Una nueva forma de habitar que surge de la combinación del expertise de Ayres y el entorno exclusivo de Pilará.

Masterplan Ayres Soho

MASTERPLAN PILARÁ

Sitemap Ayres Soho
Image

El primer proyecto de lofts con espíritu de casa dentro de Pilará. Una propuesta única y moderna que se adapta a vos. Ni casa, ni departamento: una nueva forma de habitar, con todo el confort y la escala justa.

Ver sitemap

38 lofts
unidades de 4 ambientes
con acceso independiente.

Lo mejor de una casa con la practicidad de un departamento.

Image
Image
Image
Image
Image
Image
Image
Image
Image
Image
Image
Image
Image
Image
Image
Image
Image
Image

Tus planos, tus reglas.
Uní ambientes, ampliá espacios, rediseñá tu planta.

Acá tu unidad se puede adaptar a vos.
Todo es posible.

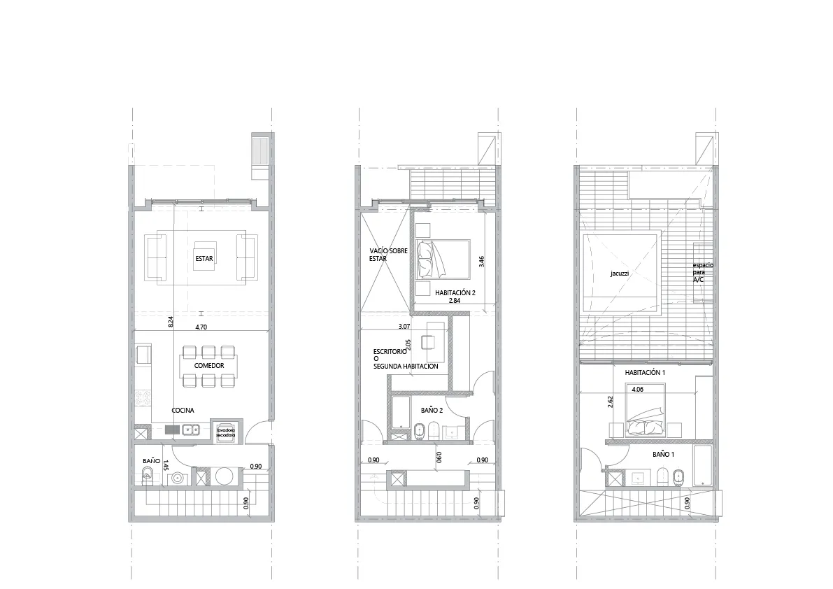
LOFT TIPO A

LOFT TIPO B

LOFT TIPO A

Loft Tipo A Loft Tipo B

DESDE 180 M2 TOTALES

DESDE 152 M2 TOTALES

HABITACIONES

1
2
3

BAÑOS

1
2
3

PLAY ROOM

si
no
Ver variantes TIPO B

AMENITIES

Todo lo que necesitás, sin salir de tu casa.

Panamericana, km 56,5

Conectividad
y tranquilidad
a minutos de Pilar

Pilará se encuentra en una ubicación estratégica, con acceso rápido a la Panamericana y al centro de Pilar, donde se concentra una variada oferta gastronómica, comercial y educativa. Un entorno que equilibra la calma del verde con la comodidad de la ciudad.

Mapa Ayres Soho